分享成功

刷到笠泽之星翻车

小红书上看到很多吐槽的,什么时候小红书变成维权的主战场了?
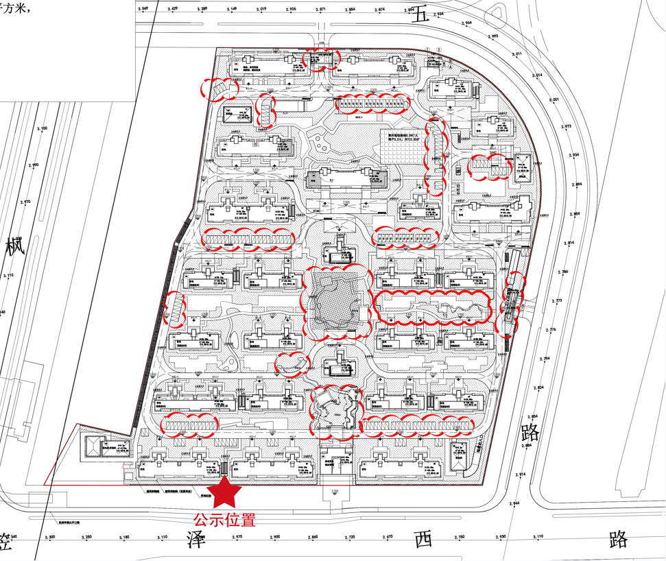
一开始公示的图纸就是大量的地面停车位和涂料外立面,怪自己啥也不懂的分辨把,在我看来,吴江体育路北之前一开始房价是炒上去了,整体品质是没有多少提升的。就靠个低容积率忽悠人。地面铺装,外立面材质 说白了就是成本的问题。弄个好看的售楼处,会所大门就能好卖了,那其他自然能省就省了。
从中旅,亨通,建发开始,其实都是涂料外立面,还是一窝蜂的买,一窝蜂的吹什么高端改善住宅,涂料外立面,地面铺点PC仿石材砖就是高端了?很多阳台都是封起来当全面积卖你,连个落地玻璃都不弄,容积率是低了,都搞复试,叠加偷面积,偷到最后楼间距都卡着下限,一排排的房子都贴着。就是高端了?
后面来的开发商一看前面的楼盘这么搞都卖的不错,那自然也就跟着玩了。
东太湖论坛中发表的内容仅代表网民个人的观点,并不代表东太湖论坛支持或反对此观点。
热门评论
  • wjcfhzhh LV5 路人
    2楼
    这个地面车位布局,高层刚需小区都没这样的设计了,阅湖之星也是这样的设计,真是开了眼了
    5-6 10:41 · 江苏
    1 回复
  • 江城道士 LV9 路人
    3楼

    wjcfhzhh 发表于 2024-5-6 10:41 这个地面车位布局,高层刚需小区都没这样的设计了,阅湖之星也是这样的设计,真是开了眼了 ...

    有没有阅湖之星的设计图啊,地面由多少车位。
    5-6 10:47 · 江苏
    回复
  • 西湖茶馆 LV12 路人
    4楼

    wjcfhzhh 发表于 2024-5-6 10:41 这个地面车位布局,高层刚需小区都没这样的设计了,阅湖之星也是这样的设计,真是开了眼了 ...

    没关系滴
    我们可以投诉普通人素质差
    素质可以治百病
    同样可以解决停车位问题
    从没想过根本原因!!
    5-6 10:47 · 江苏
    1 回复
打开东太湖论坛 APP,查看全部72条评论
你的热评
游客
发表评论
最热圈圈
  • 春天来了。

    杨春艳

    7
  • #我爱东太湖论坛#

    wsm123456

    6
  • #我爱东太湖论坛#

    wsm123456

    6
  • #我爱东太湖论坛#

    wsm123456

    6
  • #我爱东太湖论坛#

    wsm123456

    6
  • #旅游随手拍#

    1329088571

    5
  • #我爱东太湖论坛#

    wsm123456

    5
  • 改变自己无明最好的方法就是常思己过,增福增慧。所以,经常想想自己有很多过错的人,福气就会跟着他来。一个不能常思己过的人,这个人会越来越傻啊!因为他觉得自己永远是正确的,没有做错事情,所以他吃的苦会越来越多。就像有些人一样的,人家请他喝酒,明明肝不好了,他说:“没事,我很好的。”他就越喝越多,造成的恶果就是他的身体越来越不好。有些人被人家骂了,他就说:“没关系,无所谓!”不改,接下来还是被人骂,甚至还可能被人家打。所以,这些事情就像细菌一样,不能让它在身体上蔓延,我们的过错就犹如细菌,如癌细胞一样。要远离它,不能让它繁殖越来越快,否则负能量将很快占领了你身体的正能量,你就会生病。

    慧智

    4
  • #我爱东太湖论坛#

    侃话

    2
  • #我爱东太湖论坛#

    侃话

    2
热点推荐

安装应用

随时关注身边时事,认识有趣的人

免费下载东太湖论坛
这是app专享内容啦!
你可以下载app,更多精彩任你挑!
绑定手机才能继续哦!
绑定手机账号更安全哦!
绑定手机才能继续哦!
绑定手机账号更安全哦!